Iniciamos preventa
de la primera etapa
Aprovecha descuentos por apertura, ven a conocer el único desarrollo de Yautepec con amenidades de lujo como gym, cancha de pádel, y área para mascotas.
¡Solo 34 casas, y en la mejor ubicación!
OASIS YAUTEPEC IV
Solicita más información
¡APROVECHA NUESTROS PRECIOS ESPECIALES POR PREVENTA!
Landing Oasis Yautepec IV - Contacto | Grupo DV


Oasis Yautepec IV, es un desarrollo horizontal en Morelos, muy cerca del Tepozteco, que consta de 34 elegantes casas, distribuidas en 2 clusters. Puedes ser parte de este exclusivo desarrollo desde 3.1 millones de pesos. ¡No esperes!
Desarrollo pensado para tu confort
El desarrollo es amplio, con vigilancia 24/7, ajardinado, con áreas verdes, alberca, cancha de pádel y asoleaderos. Cuenta además con andadores, circulaciones, estacionamiento semi-cubierto y descubierto, así como otros equipamientos y vialidades al aire libre. Totalmente equipado para descansar, disfrutar con los tuyos y respirar naturaleza y tranquilidad.
El complejo completo comprende 4,949.46 m2 del predio.
Casas accesibles con acabados pensados en tu comodidad
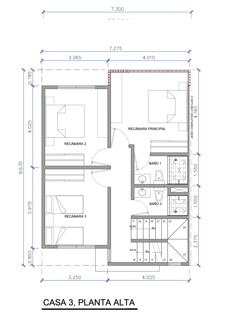
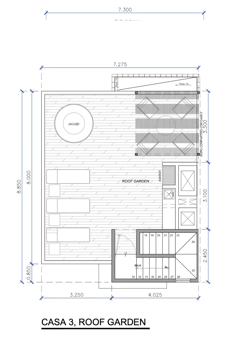
La construcción de las casas es de alta calidad, con excelentes materiales y acabados. La distribución de las casas es de: planta baja, planta alta y roof garden con jacuzzi, asador y pérgola. Tenemos para ti casas de 3 y 4 recámaras, con una superficie total de entre 140 m2 a 146 m2. Además, cada casa cuenta con 1 cajón de estacionamiento con opción a un lugar extra, según disponibilidad.
Acabados especiales
Las casas destacan por sus lindos detalles, espacios funcionales. En la azotea encuentras un roof garden con jacuzzi, una pérgola para protegerte del sol y un asador para ese fin de semana mágico con amigos y familia. Además, te incluimos una cocina integral con barra de granito.
OASIS YAUTEPEC IV
Amenidades de lujo
Cancha de Pádel
Gimnasio
Área de masajes
Amplios Jardines
Vigilancia 24hrs
Juegos Infantiles
Palapas
Área de asoleado
Albercas con
chapoteadero
Estacionamiento
para visitas
Área de mascotas
Andador Peatonal
Compra tu casa en Yautepec para una experiencia mágica
Yautepec es considerado por muchos como un lugar privilegiado, alejado de los grandes desarrollos y que ofrece a nuestros clientes la oportunidad de vivir una experiencia única. A los pies del Tepozteco, cerca de hermosas zonas verdes y del pueblo de Tepoztlán, tienes un espacio familiar pero con recursos a la altura de tus exigencias.
La zona es accesible por una nueva carretera de doble carril (dos carriles por sentido) recién estrenada, y que permite un acceso fácil y cómodo.
En la cercanía se encuentran varios restaurantes recién abiertos, de buena y moderna presencia, que ofrecen variedad al paladar.
La zona cuenta con una ciclovía que te permitirá dar largos paseos al aire libre. Los más deportistas encuentran a 30 minutos de distancia el Parque Nacional de las Estacas y también pueden acceder al icónico Tepozteco, el cual puede verse desde los roof garden de las propias casas de Oasis Yautepec IV.
Finalmente, se puede acceder al mercado local y el bonito zócalo. Por todo esto y mucho más, te invitamos a vivir o tener tu casa de fin de semana en Oasis Yautepec IV y verás que tienes una auténtica experiencia de pueblito, pero con grandes comodidades.
Paseos en la ciclovía en familia
Caminatas para llegar al mercado local
Nuevos restaurantes
Cercanía con el Tepozteco y con las estacas
Vistas a la montaña desde el Roof Garden
Nueva carretera recién inaugurada
Casi un Pueblo Mégico
OASIS YAUTEPEC IV
Galería
Nota: Algunas de las imágenes son representaciones, para uso ilustrativo únicamente, y no son un compromiso de venta.
OASIS YAUTEPEC IV
Solicita más información
¡APROVECHA NUESTROS PRECIOS ESPECIALES POR PREVENTA!





















